CITY HOUSE
The City House Loft Cabin - CH-series
Builders Kitset available from $14750+gst
Get Your City House Cabin Quote Here
The new CityHouse is a trendy modern design offering 15m² of useable floor space with a footprint of less than 10m².
The loft area, ideal for sleeping or storage, makes the City House the ultimate student sleepout or garden office.
Available with Zincalume, Coloursteel, Shadowclad Ply or Hardiplank weatherboard cladding.
If your cabin is under 10m² and with a maximum roof height under 3.5m, it is a suitable backyard addition that will generally not require Building consent, which makes them the ideal option for an owner build.
Models available:
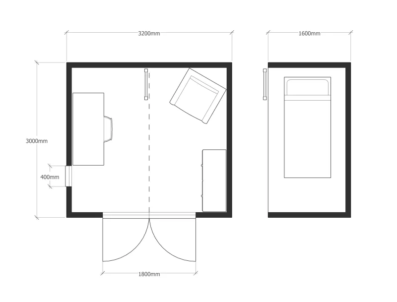
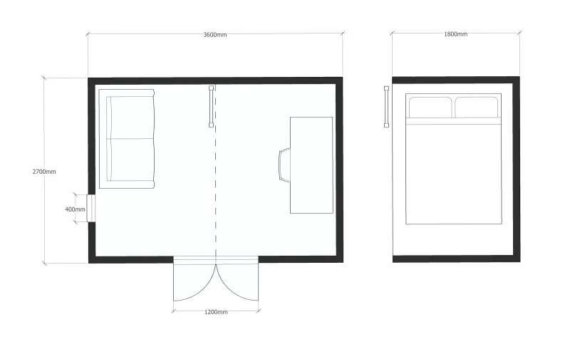
- CH3627: 3.6m x 2.7m - 9.72m² (Loft - 2.7m x 1.8m)
- CH3230: 3.2m x 3.0m - 9.60m² (Loft - 3.0m x 1.6m)
Floor plans and images are a representation only.
Other Sample Cabin Plans under 10m²
Other Sample Cabin Plans over 10m²
Available as Builders Kitset.
| CITY HOUSE CABIN MODEL SPECS | |
|---|---|
| Frame: | 90mm H1.2 Radiata |
| Floor: | 20mm P/board, H3.2 joists |
| Cladding: | Colour Steel, Optional Cedar Feature Panels |
| Roof: | Colour Steel |
| Doors: | Aluminium French door, 2.0m high x 1.65m wide |
| Windows: |
Aluminium, 1 @ 2.0m high x 0.4m wide, 1@ 0.4m high x 1.65m wide |
| Loft Floor: | 20mm P/board |
| KITSET LOCK UP SHELL | |
|
EXTRAS LINING KIT - From $2120+gst Includes: Wall/Ceiling Insulation - Pinkbatts, Plasterboard linings to the cabin, Pine trim, Fixings and Fastenings. FOUNDATION KIT - From $1350+gst (Layout dependent) Includes: Piles, Bearers and Fixings. |
|
| Options | |
| Doors: | Change to a slider or different sizes |
| Windows: | Extra windows, different sizes |
| Cladding: | Colour steel, Hardiplank W/Board, Shadowclad |
| Floor: | Treated plywood, underfloor insulation |
| Deck: | Sizes as required |
| NOTE: Prices may vary due to location requirements | |
Kits can be supplied in two ways:
MS Merchant Supply
Ideal for competent builders. Includes CBNZ's unique Plan Pack with full manufacturing drawings and assembly instructions.
It also includes organising the best material quotations for all materials delivered to the site.
BK Builders Supply
Ideal for builders or experienced DIYers. Includes precut and pre-nailed floor and cabin framing, manufacturing drawings and assembly instructions for roofing, cladding, and joinery.
All materials including linings, delivered to site.



















