PENT CABINS
Pent Cabin - PT-Series
Builders Kitset available from $11,095+gst
Get Your Pent Cabin Quote Here
Studio, Garden Office, Games Room - the PC-Series pent roof Cabins offer growing families a practical option for additional leisure or workspace.
Being under 10m² it is a suitable backyard addition, it will generally not require Building Consent, which makes them the ideal option for an owner build.
Cabin kitsets include pre-assembled framing, Zincalume roofing, Shadowclad ply or Hardiplank cladding and house-quality aluminium French door and awning windows.
Optional lining and insulation kits are available.
Also available in Cabin, Bach and Grannyflat Styles over 10m²:
Lengths: 4.8m to 12.0m. Widths: 2.4m to 6.0m. Floor Areas: 12m² to 72m²
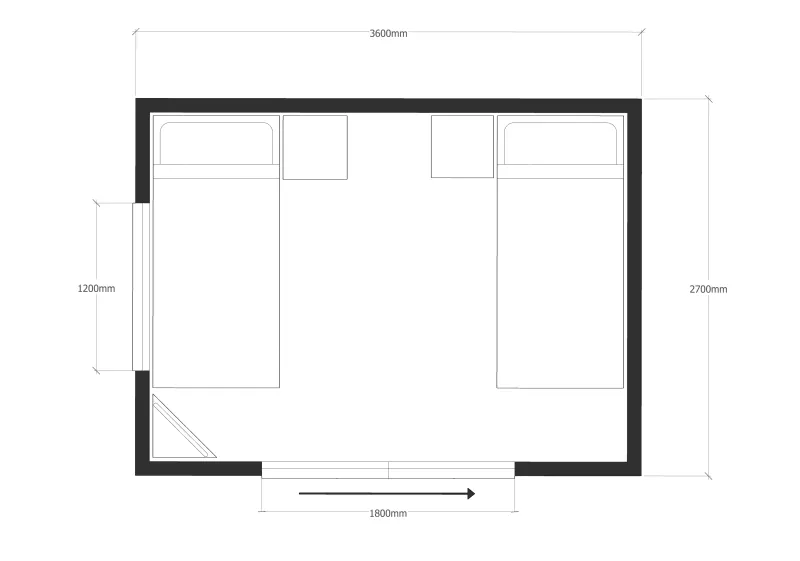
Example: PT6036 - 6.0m L x 3.6m W, Area 21.6m²
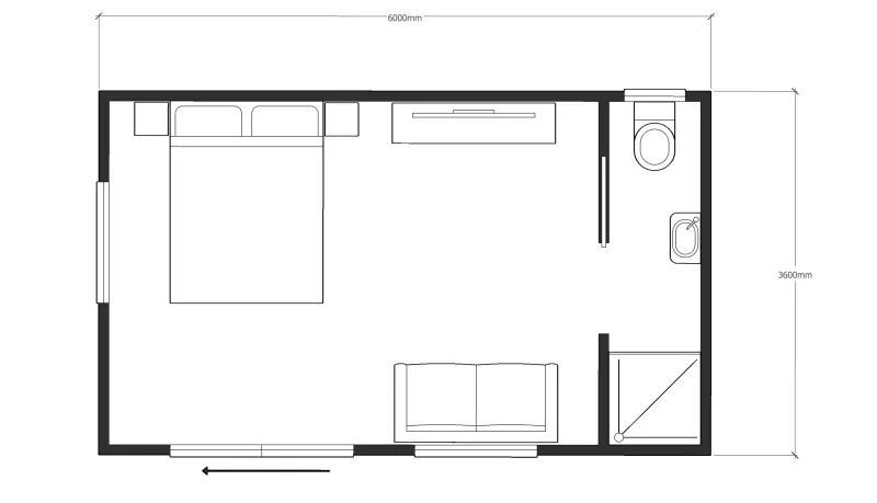
Floor plans and images are a representation only.
Other Sample Cabin Plans under 10m²
Other Sample Cabin Plans over 10m²
| PT-Cabins | Model: | PT-3627 | PT-4124 |
![]() |
L length: |
3.6m |
4.1m |
| W Width: |
2.7m |
2.4m | |
| Roof Height R: | 2.5m | 2.5m | |
| Wall Height H: | 2.3m | 2.3m | |
| Area: | 9.72m² | 9.84m² | |
| Doors: | F/doors | F/doors | |
| Windows: | 1 | 1 | |
| PENT CABIN SPECS | |||
| Frame: | 90mm H1.2 Radiata | ||
| Floor: | 20mm P/board, H3.2 joists | ||
| Cladding: | Shadowclad Grooved H3 Plywood | ||
| Roof: | Colour Steel | ||
| Doors: |
Aluminium Frenchdoor, 2.0m high x 1.2m wide |
||
| Windows: | Aluminium Awning, 1 @ 0.8m high x 0.6m wide | ||
| KITSET LOCKUP SHELL | |||
|
EXTRAS LINING KIT - From $1635+gst Includes: Wall/Ceiling Insulation - Pinkbatts, Plasterboard linings to the cabin, Pine Trim, Fixings and Fastenings. FOUNDATION KIT - From $1350+gst (Layout dependent) Includes: Piles, Bearers and Fixings. |
|||
| OPTIONS | |||
| Doors | Change to French door or different sizes | ||
| Windows: | Extra windows, different sizes | ||
| Cladding: | Plywood and Batten, Zincalume/Coloursteel, Hardiplank W/Board | ||
| Floor: | Treated plywood, underfloor insulation | ||
| Decks: | Sizes as required | ||
| Units: | Any kitchen, laundry or bathroom units required | ||
| NOTE: Prices may vary due to location requirements | |||
Kits can be supplied in two ways:
MS Merchant Supply
Ideal for competent builders. Includes CBNZ's unique Plan Pack with full manufacturing drawings and assembly instructions.
It also includes organising the best material quotations for all materials delivered to the site.
BK Builders Supply
Ideal for builders or experienced DIYers. Includes precut and pre-nailed floor and cabin framing, manufacturing drawings and assembly instructions for roofing, cladding, and joinery.
All materials including linings, delivered to site.
















