THE NOVA
The Nova Loft Cabin - NV-Series
Builders Kitset available from $12,975+gst
Get Your Nova Cabin Quote Here
The striking new Nova cabin makes the most of a small floor footprint with a functional loft area.
Whether sleepout, home office or workplace, the Nova's loft area is ideal for additional storage or sleeping space.
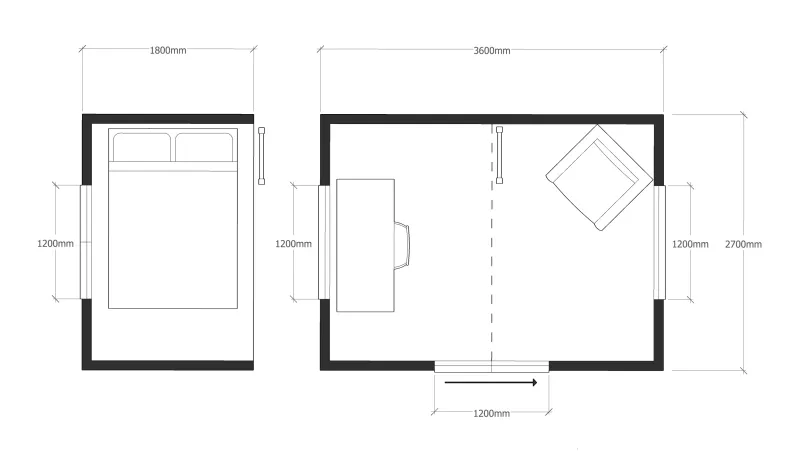
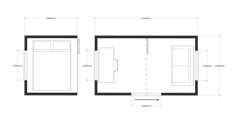
The NV4124 model illustrated has Zincalume cladding with a French door and two awning windows. Nova cabins can be customised with a range of door, window and cladding options available.
If your cabin is under 10m² and with a maximum roof height under 3.5m, it is a suitable backyard addition that will generally not require Building consent, which makes them the ideal option for an owner build.
Models available:
- NV4124: 4.1m x 2.4m - 9.84m² (Loft 2.4m x 2.0m)
- NV3627: 3.6m x 2.7m - 9.72m² (Loft 2.7m x 1.8m)
Floor plans and images are a representation only.
Other Sample Cabin Plans under 10m²
Other Sample Cabin Plans over 10m²
Available as Builders Kitset
| NOVA CABIN MODEL SPECS | |
| Frame: | 90mm, H1.2 Radiata |
| Floor: | 20mm P/Board, H3.2 Joists |
| Cladding: | Colour Steel |
| Roof: | Colour Steel |
| Doors: | Aluminium French door, 2.0m high x 1.2m wide |
| Windows: | Aluminium, 2 @ 0.4m high x 1.2m wide |
| Loft Floor: | 20mm P/Board |
| KITSET LOCKUP SHELL | |
|
EXTRAS LINING KIT - From $2120+gst Includes: Wall/Ceiling Insulation - Pinkbatts, Plasterboard linings to the cabin, Pine trim, Fixings and Fastenings. FOUNDATION KIT - From $1350+gst (Layout dependent) Includes: Piles, Bearers and Fixings. |
|
| OPTIONS | |
| Doors: | Change to French door or different sizes |
| Windows: | Extra windows, different sizes |
| Cladding: | Coloursteel |
| Floor: | Treated plywood, underfloor insulation |
| Decks: | Sizes as required |
| NOTE: Prices may vary due to location requirements | |
Kits can be supplied in two ways:
MS Merchant Supply
Ideal for competent builders. Includes CBNZ's unique Plan Pack with full manufacturing drawings and assembly instructions.
It also includes organising the best material quotations for all materials delivered to the site.
BK Builders Supply
Ideal for builders or experienced DIYers. Includes precut and pre-nailed floor and cabin framing, manufacturing drawings and assembly instructions for roofing, cladding, and joinery.
All materials including linings, delivered to site.















